Načítání
MENU MENU
Menu
Prodej

Kompletně zrekonstruovaná chalupa na nádherném místě v Nové Vsi u Kdyně

Nová Ves
7 795 000 Kč
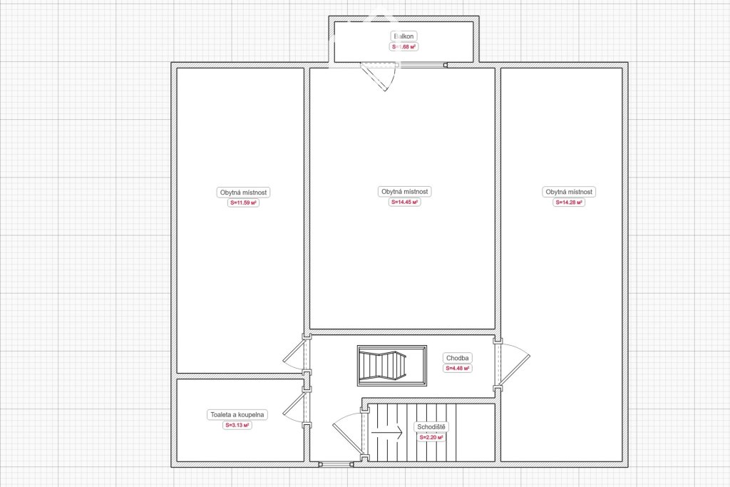
Předmětem prodeje je kompletně zrekonstruovaná, stylová chalupa, která se nachází na návsi obce Nová Ves ( cca. 5 km z centra města Kdyně). Jedná se o rodinný dům původně postavený na začátku 60. let 20. stol. a následně kompletně zrekonstruovaný mezi lety 2010 – 2023.

Kvalitně provedená zděná stavba je částečně podsklepená (1x sklepní místnost). Ve sklepním prostoru je umístěn moderní topný systém, který sestává z kotle Atmos (třída A+) a zásobníků na nahřátou vodu. V době, kdy kotel není v provozu, je teplá voda nezávisle ohřívána el. bojlerem. V 1. nadzemním podlaží se nachází zádveří, kuchyně, obývací pokoj s krbem, samostatné WC, koupelna s vanou. Ve 2. nadzemním podlaží je jeden větší pokoj s balkonem, 2 menší samostatné pokoje, koupelna s WC a sprchovým koutem. Stavební úpravou původní stavby vzniklo prostorné atrium využitelné pro posezení, stání pro auto či jako venkovní dílna a další 2 samostatné místnosti (1x zrekonstruovaná a 1x v původním stavu) umístěné v protější části původního domu.

Rodinný dům je napojen na elektrickou energii (230V / 400V). Odpady jsou svedeny do tříkomorového přepadového septiku, pitná voda je čerpána z kopané studny. K dispozici je i další kopaná studna na užitkovou vodu.

Dům obklopuje prostorný rovinatý dvůr s dalšími stavbami jako je garáž s venkovním krbem, stodola, přístřešek na dřevo a designové jezírko. Předmětem prodeje je dále travnatý pozemek za stodolou, využitelný jako pastvina, sad či zahrada. Celková výměra pozemků je 1 882 m2.

Díky své poloze je z nemovitosti výborná dostupnost jak do města Kdyně, Klatov a Domažlic, tak na hraniční přechod Všeruby (7 km). V obci je aktivní přátelská komunita se spolkem hasičů, žen a otužilců (rybníček je přímo v obci). Na návsi je venkovní posilovna a dětské hřiště. Pokud máte zájem o dům pro kvalitní rodinné bydlení či rekreaci v nádherné přírodě Všerubské vrchoviny, tak neváhejte kontaktovat našeho makléře pana Michala Maška. Rád Vám k této nemovitosti poskytne veškeré informace, zajistí Vám její prohlídku a bezpečně Vás provede celým procesem jejího pořízení.
Podrobnosti o nemovitosti
ID zakázky
21254MA-1
Cena
7 795 000 Kč
Město
Nová Ves
Energetická nárocnost budovy
A - Mimořádne úsporná
Podle vyhlášky
č. 78/2013 Sb.
Ukazatel energetické náročnosti budovy
54 kWh/m2 za rok
Velikost
5 a více pokojů
Plocha pozemku
1 882 m2
Stavba
Cihlová
Stav objektu
Po rekonstrukci
Typ domu
Patrový
Poloha domu
Samostatný
Umístení objektu
Klidná část obce
Zástavba
Obytná
Užitná plocha
200 m2
Garáž
Ano
Počet garáží
1
Balkón
Ano
Plocha balkónu
2 m2
Podlaží počet
2
Podlaží podzemní
1
Rok výstavby
1961
Telekomunikace
Telefon, Internet
Topení
Lokální tuhá paliva, Ústřední tuhá paliva
Doprava
Silnice
Elektřina
230V, 400V
Odpad
Septik
Komunikace
Asfaltová
Nemovitost na mapě
Nová Ves
Pubec hypotéka
od 4,8 %
Náš hypoteční specialista Vám rád pomůže s nastavením nejvýhodnějších parametrů hypotéky a pomůže s jejím vyřízením. Spolupracujeme s řadou finančních ústavů a připravíme nabídku na míru Vašim potřebám.
ORIENTAČNÍ KALKULAČKA
Cena této nemovitosti: 7 795 000 Kč
Výše úvěru
2 000 000
Vlastní prostředky
5 795 000
Splatnost
20 let
Měsíční splátka:
Při úrokové sazbě 4,8 %
- Kč
Hledáte další nemovitosti jako je tato?
Nastavte si realitního hlídače.
Hlídací pes Vás bude průběžně informovat o nově zařazených a zlevněných nemovitostech, které by Vás mohly zajímat. Sami si určíte, jaké druhy nemovitostí Vám bude do emailu zasílat.
Nastavit hlídače
Až si budeme volat,
bude se nám hodit číslo zakázky:
21254MA-1

Potřebujete nejdřív prodat, než koupíte?

Zjistěte, co pro Vás můžeme udělat. Zajistíme provázání obchodu tak, abyste dobře prodali a zároveň na Vás nová nemovitost počkala.

Rychle
Bezpečně
Bez starostí
NAPIŠTE NÁM
ozveme se zpět
* Označené položky jsou povinné.
Odesláním formuláře souhlasíte s kontaktováním a zpracováním svých osobních údajů.
Sušenky
Používáme sušenky
Pro vylepšení vašeho zážitku při procházení webu používáme cookies [sušenky].
Velmi nám také pomáhají v efektivnějším prodeji vašich nemovitostí.
Nastavení cookies
Soubory cookies byly navrženy tak, aby byly spolehlivým mechanismem, pomocí kterého si webové stránky zapamatují informace nebo zaznamenají aktivitu uživatele při prohlížení. Používáme je, abychom zajistili spolehlivost a bezpečnost našich stránek, sledovali jejich výkonnost a zprostředkovali personalizovaný nákupní zážitek a cílenou reklamu. Jejich povolením nám pomůžete v jejich vylepšování a efektivnějšímu prodeji vašich nemovitostí.
Funkční cookies
Tyto cookies jsou určené pro analýzu výkonu webu a pomáhají nám zlepšovat služby a obsah který vám nabízí.

Dotčené služby:
Google Analytics
HotJar
Tyto cookies jsou určené pro cílenou reklamu na nemovitosti, které by Vás mohly v budoucnu zajímat. Tyto marketingové soubory cookie budou použity pouze s vaším souhlasem.

Dotčené služby:
Google Ads
Seznam.cz
Facebook